SEESI Informatique propose la création ou la mise au propre de vos dessins papiers, scanner ou PDF aux formats DAO/CAO :

DWG, DXF, PRT, STEP, IGES, STL, CATPart, CGR, IFC, IPT et autres 

  • Dessins de schémas ou de synoptiques
  • Dessins d’implantations
  • Dessins ISO
  • Plans de Permis de construire
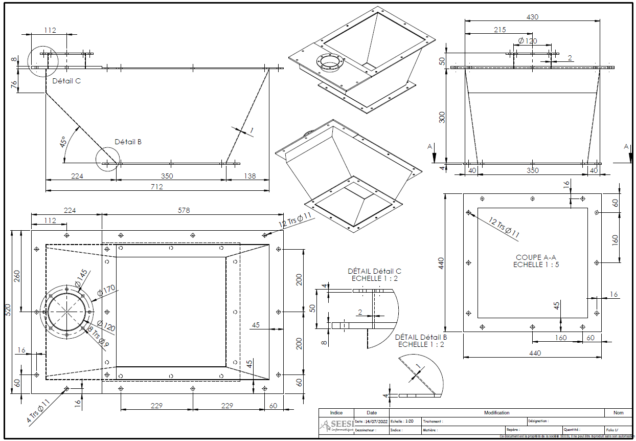
  • Dessins de pièces mécaniques en 2D ou 3D
  • Dessins d’assemblage
  • Dessins 2D ou 3D de tous types avec rendu réaliste

 

SEESI informatique propose : 

  • Adapter une unité de longueur et d’angle aux dessins.
  • Créer un GEO-Référencement en fonction du Système de Coordonnées (SCU).
  • Utilisation des calques suivant une charte graphique prédéfinie.
  • Utilisation des BLOCS dans le dessin.
  • Utilisation des Références Externes (Xref) afin d’optimiser le travail collaboratif.
  • Gérer les Présentations en espace OBJET et ESPACES PAPIERS afin de faciliter les impressions et publications à l’échelle.

Confidentialité 

  • Tous les plans, normes, spécifications et autres documents que l’acheteur a confiés à SEESI informatique pour la réalisation de la prestation, de même que les documents établis par SEESI informatique sur des indications particulières de l’acheteur, restent la propriété de l’acheteur et ne doivent pas être utilisés, reproduits ou rendus accessibles à des tiers à d’autres fins. Ils doivent être restitués sur demande à l’acheteur avec toutes les copies et reproductions éventuellement établies. L’acheteur conserve tous les droits en matière de propriété industrielle sur tous les documents transmis par SEESI informatique. 
  • SEESI informatique doit considérer la demande d’offre, la commande et les travaux consécutifs comme relevant du secret professionnel, et en conséquence les traiter confidentiellement. Il répond de tous les dommages éventuellement subis par l’acheteur à la suite de la non-observation de cet engagement. 
  • Il incombe à SEESI informatique de soumettre à l’acheteur tous les documents nécessaires à la mise en discussion de l’objet de prestation. Une telle discussion et toute autre forme de participation de l’acheteur restent sans influence sur la responsabilité exclusive de SEESI informatique et ne dispense pas celui-ci de ses éventuelles obligations de garantie ou de ses autres engagements. 
  • Les documents de toutes sortes dont l’acheteur a besoin pour l’utilisation, l’installation, le montage, la transformation, le stockage, le fonctionnement, l’entretien, l’inspection, la maintenance et la réparation de l’objet de la livraison doivent être spontanément mis à disposition par SEESI informatique en temps voulu. 
  • Les normes et spécifications citées par l’acheteur, notamment le cahier des charges, sont à appliquer dans leur version la plus récente. Ces directives de l’acheteur doivent être réclamées par SEESI informatique dans la mesure où elles n’ont pas encore été mises à sa disposition.

 

Dessins de schémas ou de synoptiques

Dessins d’implantations

Dessins ISO

Dessins de pièces mécaniques en 2D ou 3D

Dessins d’assemblage

 Dessins 2D ou 3D de tous types avec rendu réaliste

Plans de permis de construire

SEESI-INFORMATIQUE
Tous droits réservés © 2026
Version 2 du site
Mentions Légales | CGV | Politique de confidentialité

Création de site internet
 H. Guillaumont
WebCréaPrint logo